Kennebec Central Buildings
These drawings were developed a dozen years ago with a lot of help from Bob Schlechter and were originally published in Robert Jones’ book Two Feet to Togus. Until they were published, no photos of the east side had surfaced. Immediately afterward, of course, the original architect’s drawings emerged. Although those architect’s drawings were diagrammatic and included details that could not physically be built, they showed a different arrangement of door and windows on the east side. The drawings shown here have been corrected. As usual, left click on the drawings to enlarge them.
At some point around 1910 the freight doors were replaced by windows and the corner freight room made into the railroad superintendent’s office.
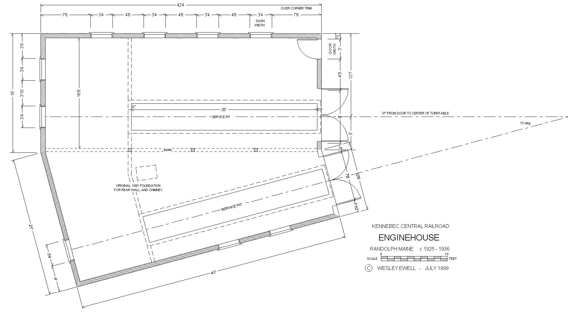
Over the years the Kennebec Central had at least three enginehouses in Randolph. Here are my drawings of the last of them.
And while we are on the subject of the Kennebec Central, here’s a drawing I did many years ago of the combine that the KC converted from one of its Jackson & Sharp excursion cars.
Text and drawings on this page Copyright 1999 and 2010 by Wesley Ewell and may not be used in any form without permission. An exception is granted for modelbuilders who may copy the drawings for personal use, but may not sell, distribute or publish them in any way.









March 31, 2011 at 6:28 pm |
I recieved a drawing of a Kennebec Central Frieght Shed from Garry Kohler of Maine 2ft quarterly
It has a very strange angle on one wall. I am haveing a prob locating the position of the blgd. Any ideas would be appreciated.
Pat Konkle
September 22, 2012 at 6:04 pm |
To Pat:
I suspect that the freight house may have either gone at the road crossing, or followed a proeprty lot line. The original rectangular school house looking engine house was also never built.
Peter Barney
August 24, 2011 at 12:47 am |
Wes, thanks for posting these!
March 27, 2014 at 2:45 pm |
Hello. I am the president of the Friends of the Old Narrow Gauge trail in Randolph where we maintain a nature trail on the old right of way of the Kennebec Central. I just received a call from a man who said he was told the weather vane on their house in Litchfield is from the old station house in Randolph. I found one drawing online that shows a weather vane. Does anybody have any information on the weather vane or any detailed drawings.Thanks.
March 28, 2014 at 12:05 am |
Dan: You now know that Bob Schlechter prepared a drawing of the weathervane, and was aware that it still exists. He and I guessed when we made these drawings that somebody somewhere had the vane and that it would eventually turn up. Thank you for your comments.
November 21, 2014 at 6:27 pm |
i am trying to find info on pottsville that was between randolph and togus, i believe it had a train depot and was part of kennebec central railroad. any info would be appreciated
November 21, 2014 at 11:38 pm |
I’m more draftsman than historian, and don’t know the answer to your question. I can tell you that the only structures I know of between Randolph and Togus were a tiny shack of a shelter and the body of one of the excursion cars.
May 27, 2016 at 10:58 pm |
Wes,
Thank you for sharing your work. Thoughly enjoy seeing your drawings. You are quite a builder of kayaks boats
Doug MacLeod
May 28, 2016 at 12:41 pm |
Thanks Doug. Good to hear from you.
February 20, 2017 at 4:57 pm |
New to your site. Have to say it is a nice addition to my resources for 2 foot railroads. Love your work and thank you for sharing. God bless.